/ Javier González de Durana /
No es brillante, aunque tampoco completamente mostrenco, ni suntuoso, sin resultar pobre por ello; le falta espectacularidad, pero tiene indudable encanto, y carece de magia, pero podría ser un lugar delicioso. Me refiero al conjunto formado por el edificio del antiguo colegio de las Carmelitas de la Caridad, sus dos palmeras y el patio de recreo. Se viene hablando mucho sobre esta amplia parcela de la trama del ensanche bilbaíno, en el barrio de Abando, porque existe un plan de su propietario, el Obispado de Bilbao, para convertirla, por métodos administrativamente opacos, en algo que ni los vecinos de la zona ni el AMPA del próximo Colegio Cervantes desean por las consecuencias fácilmente adivinables que vislumbran en el horizonte. No obstante, se trata tanto de lo que sucederá en el futuro (caso de no lograr la paralización de este despropósito) como de lo que se perderá en el presente y se olvidará del pasado.
Se difuminará la posibilidad de disponer de un pequeño lugar cercano para miles de personas residentes y transeúntes del barrio que ahora contemplan la seca urbanización de unas calles en las que sólo se mueven con facilidad cientos de coches que circulan por ellas cada hora: Alameda de Recalde, Alameda de Mazarredo, Henao, Iparraguirre, Ajuariaguerra… son torrentes constantes de vehículos. La ciudad amable para el residente y peatón que pretende el Ayuntamiento aquí no se siente.
El parque de Doña Casilda y los jardines de Albia no quedan cerca, el paseo de Uribitarte está ahí abajo y lo más cercano para un mínimo confort, con permiso de Colón de Larreátegui, es la pequeña plaza de Jado, recoleta a pesar de su horrible fuente «leonada» en mármol de Macael. El patio de recreo del BAM, por tanto, se presenta como la última posibilidad de un respiro para un área que lleva tal como está -esto es, compactada- desde hace más de cien años; el 80 % de los inmuebles de viviendas del entorno fue construido a finales del XIX y principios del XX..
Quiero contar algo que puede servir para conectar el pasado con el futuro.
Es probable que sea desconocido el hecho de que en los primeros meses de la guerra civil, cuando el general Emilio Mola desplegó un esfuerzo notable por apoderarse de Bilbao, mandó bombardear la villa con saña a partir de las 10 de la mañana del 25 de septiembre de 1936. Hubo varias zonas de Bilbao severamente dañadas, una fue el Casco Viejo de las siete calles y otra fue ésta del entorno de Abando, las calles Henao, Mazarredo, Recalde, Colón de Larreatégui, Uribitarte… Uno de los edificios afectados por el bombardeo fue, precisamente, el colegio de las Carmelitas de la Caridad, en la calle Barraincúa. Es el único lugar afectado que sobrevive en la actualidad con el aspecto, más o menos, que mostraba entonces.
Los bombardeos prosiguieron en los días siguientes, causando cerca de cien muertes, entre ellas las de algunos niños y niñas, y más de seiscientos heridos entre los días 25 y 28. Estas acciones bélicas, sobre todo, la del 25 de septiembre, tuvieron dramáticas repercusiones en otros lugares cercanos. Los barcos-prisión, Altuna-Mendi, fondeado en Axpe (Erandio), y Cabo Quilates, atracado en Bilbao, fueron asaltados por milicianos incontrolados, causando treinta y cinco muertes el día 25 en el Cabo Quilates y veintiocho muertes el día 26 en el Altuna Mendi, entre los allí retenidos a causa de su vinculación con fuerzas políticas anti-republicanas (requetés, monárquicos y carlistas…) por fusilamiento. Dieciséis de aquellos prisioneros que morirían en esas y en las siguientes jornadas eran sacerdotes.
La aviación franquista, tanto la Aviazione Legionaria italiana como la Legión Cóndor alemana y las Fuerzas Aéreas del Norte españolas, tomaron parte en las operaciones de bombardeo. Los modelos que habitualmente se utilizaron en estos ataques aéreos fueron los “Caproni 133” y los “Savoia-Marchetti S.M.81” italianos, y los cazas “Junker Ju52”, los trimotores “Heinkel He52” y los “Messerschmitt Bf.109” alemanes. Es decir, algunos de los aviones que meses después atacarían Gernika. El día 23 de abril de 1937 la villa fue bombardeada en cuatro ocasiones y el comandante alemán W. Von Richtofen, Jefe del Estado Mayor de la Legión Cóndor, escribió en su diario aquella jornada infausta: “Sobrevienen pensamientos de reducir, a pesar de todo, Bilbao ahora mismo a escombro y cenizas”. Pues bien, el bombardeo que dañó el colegio de las Carmelitas fue el primero de una larga secuencia de ataques aéreos que se prolongaron hasta que Bilbao cayó en manos de las tropas franquistas.
No se ha podido verificar si algunos de los niños y las niñas fallecidas lo fueron mientras estaban en el colegio. No parece probable, pues a finales de septiembre todavía debían estar con las vacaciones de verano en aquella época.
Este lugar en el Ensanche de Abando es el último testimonio de un horror que vivió la ciudad durante la guerra. Con Bilbao ya «liberado» pero con la guerra activa en otras partes del país, el 16 de agosto de 1938 el Colegio de Arquitectos Vasco-Navarro selló la solicitud dirigida al Alcalde de Bilbao por parte del arquitecto Emiliano Amann, «en nombre de la Comunidad de R.R. Carmelitas de la Caridad, propietarias de un Colegio emplazado en las calles de Barraincúa y los Heros de esta Villa«, de cara a lograr «autorización para efectuar en él obras de reconstrucción parcial de la parte del edificio por el bombardeo del 15-9-936 (sic). La reconstrucción se llevará a cabo conforme en un todo a su primitivo estado«.
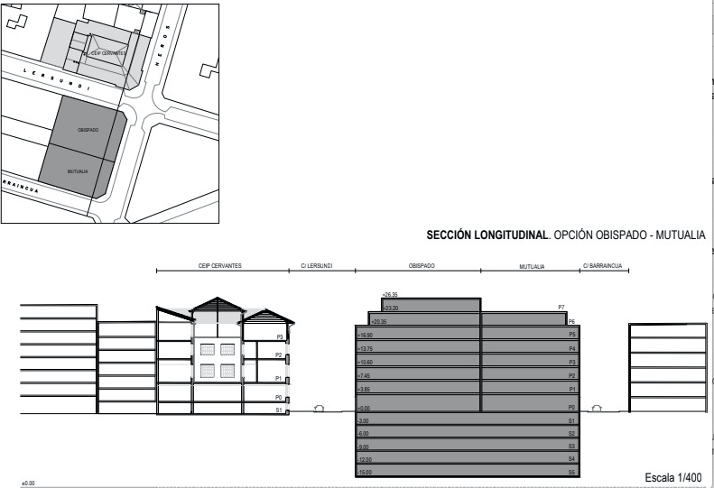
Quisiera ofrecer una alternativa al prepotente edificio que el Obispado quiere construir ahí (véase los planos al final de este texto): conservar ese espacio, «edificio+palmeras+patio», como un lugar de la memoria, reconvertido en jardín abierto a la ciudadanía, que sirva para perpetuar el recuerdo de quienes murieron en esta zona de Bilbao como consecuencia de aquellos bombardeos aéreos, especialmente para recordar a los niños y niñas, víctimas más injustas que ninguna, y a cuantos fallecieron de una manera u otra durante aquel largo y cruel conflicto bélico.
En vez del escombro y las cenizas que algunos desearon para Bilbao entonces, hagamos de este lugar un recinto de paz y memoria para los niños y niñas del barrio. ¿Olvidará el Obispado a sus propias víctimas, algunas de las cuales fueron fusiladas como consecuencia directa del bombardeo sufrido en este emplazamiento?





Al obispado no le importan los niños y niñas de la Escuela Pública Cervantes, ni la gente mayor de los alrededores de su «Propiedad Privada». Su argumento dicho en palabras llanas: «Ese terreno es nuestro y hacemos con él lo que nos da la gana»
No importa que sean los mayores propietarios inmobiliarios de Bizkaia y que posean en Bilbao otros lugares más apropiados para instalar la sede del obispado, por ejemplo, la casa cural de San Vicente en los Jardines de Albia. No importa que tengan propiedades más acertadas para instalar la clínica de Mutualia, con la que han pactado el negocio. Por ejemplo, la iglesia de la Inmaculada Concepción en Sabino Arana, junto a la estación de autobuses y el metro. Un edificio sin casas centenarias pegadas a él.
Nada ni nadie son más importantes que el negocio.
Me gustaMe gusta
De acuerdo contigo, Lourdes. Para colmo, mira este enlace:
https://www.publico.es/sociedad/negocio-dios-manda-iglesia-gana-90-millones-limpios-tres-anos.html
Me gustaMe gusta