/ Javier González de Durana /

Hasta hace poco tiempo los caseríos no se restauraban, se modernizaban. Esto venía a implicar una alteración inevitable de sus peculiares características originales, fueran éstas las que fuesen. A medida que el país y sus gentes adquirieron cierto bienestar económico, el caserío pasó a ser considerado, desde el mundo urbano, como el distante y olvidable solar de los ancestros y, en el mundo rural, como el paradigma de construcción vieja más que antigua e incómoda en vez de confortable, al tiempo que abrigo de interiores húmedos y oscuros.
Con siglos de existencia sobre sus espaldas, al llegar a mediados del siglo XX los caseríos estaban marcados tanto por la naturaleza mixta de las funciones para las que se construyeron (residencial, agropecuario y almacén) como por la erosiva intensidad de tales usos sin el beneficio, la mayoría de las veces, de unas mínimas tareas de mantenimiento. Tanto como un hogar, el caserío era una herramienta laboral o máquina en cuyo interior se vivía.
La industrialización de los pueblos en la zona baja de los valles provocó que desde los caseríos sus habitantes acudieran a trabajar en las fábricas, simultaneando los nuevos oficios con las anteriores tareas rurales que poco a poco fueron a menos. Gracias a talleres y factorías, la riqueza familiar aumentó a medida que las labores tradicionales disminuían. Este nuevo dinero y la minoración de la carga del trabajo secular tuvieron consecuencias. En algunos casos, terminó por provocar el abandono del caserío por parte de sus ocupantes a cambio de un piso en los pueblos próximos y en otros casos, para aquellos que decidieron seguir habitando la vieja casona, trajo su transformación ajustada a las nuevas posibilidades económicas.
Esto último supuso cambios en los usos de los espacios interiores. Así, por ejemplo, las grandes cuadras en planta baja y los amplios desvanes bajo cubierta encontraron la posibilidad de convertirse en ámbitos vinculados con lo residencial. Caso de mantener ganadería, ésta podía ser trasladada a nuevos pabellones construidos en las inmediaciones donde los animales estabulados serían más y estarían mejor organizados y, a su vez, el desván podía dejar de ser almacén, pues los productos guardados también se mantendrían en otro pabellón cercano, al igual que una maquinaria de cada vez mayor tamaño. De este modo, el caserío ganaba higiene además de amplitud doméstica. El exterior del caserío, en numerosas ocasiones, también se vio afectado con agregados anexos y terrazas, ampliación y desplazamiento de puertas y ventanas, alzamiento de cubiertas, etc. La casuística es muy variada, tanto como las personas que los habitaron y reformaron.
Los tiempos siguen cambiando y ahora los caseríos se restauran. Incluso, algunos que fueron desafortunadamente modernizados recuperan parte de su aspecto original con la eliminación de añadidos degradantes, limpieza de fachadas, retirada de enmascaramientos… Es verdad que, a veces, en esta «limpieza» de la imagen se va más allá de lo tipológico y se eliminan de las fachadas revestimientos, como enfoscados y revocos, pertenecientes al diseño original, para sacar a la luz muros de piedra que siempre estuvieron cubiertos, dejando a la vista por igual los nobles sillares en esquinas y vanos -cuando los tienen- y el irregular mampuesto de los paños.
Se restauran los caseríos que han tenido continuidad de uso y también se rehabilitan aquellos que quedaron abandonados, sus techos se hundieron y la vegetación los devoró, manteniendo en pie los muros perimetrales y poco más. En los casos de grave ruina física la rehabilitación puede encontrar excusas irreprochables para ser «creativa» y renunciar a recuperar las hipotéticas imagen externa y organización interior originarias, pues el beneficio de la habitabilidad reconquistada lo justificaría de sobra. Pero no siempre es así. Hay quien reserva su creatividad para mejores ocasiones y prioriza el respeto a la naturaleza esencial del caserío, aunque su degradación haya sido importante.


Recientemente HIKA Arkitektura (Arantxa Quintana y Kepa Iturriaga) ha concluido la restauración y rehabilitación del caserío Etxebarrizelaieta, localizado al sur del barrio Bildosola (Artea, antes Castillo-Elejabeitia), el cual se encontraba en malas condiciones de conservación y con estabilidad frágil en ciertos puntos de los forjados. El trabajo ha consistido en una reforma interior y consolidación estructural, manteniendo el volumen general de la edificación y la estética de su peculiar arquitectura rural que, en este caso, responde a un sub-tipo propio de los valles del Arratia y el Nervión. Aparecido a principios del siglo XIX, integra dos viviendas geminadas, separadas interiormente por un muro medianero, dentro de un solo bloque de acusada base rectangular, con acceso a las respectivas primeras plantas mediante dos escaleras exteriores de madera -«patines arratianos»- y fachada principal simétrica en uno de los muros largos. Una fachada que queda protegida por alero de gran vuelo apoyado en una secuencia de jabalcones.
Tras la magnifica evolución de caserío en territorio vizcaíno durante los siglos XVI, XVII y XVIII, este modelo vino a representar una de sus ultimas evoluciones naturales a partir de la tradición. El surgimiento de este tipo de construcción doble se debió al notable incremento de la población ocurrido durante la segunda mitad de XVIII, lo cual generó una necesidad habitacional que se resolvió con nuevas casas («etxe barri») bi-familiares, frente a la costumbre anterior de que cada caserío acogiera una sola entidad familiar, más o menos extensa. Con un mayor esfuerzo constructivo, pero no el doble de esfuerzo, al levantar una casa se conseguía vivienda para dos familias. Sus primeros habitantes no debieron de ser los promotores de la construcción, ni dueños de las casas y terrenos que trabajaban alrededor, sino sus arrendatarios. No fue el tipo de construcción para residencia de grandes propietarios de suelo rural, ni mucho menos.
Al conservarse la envolvente del caserío, se ha mantenido la cubierta a cuatro aguas con las pendientes existentes, dado que su estructura principal de madera permanece íntegra. De hecho, se ha consolidado toda la estructura general, sustituyendo tan sólo los elementos deteriorados. El armazón de madera principal está machimbrado, evidenciando una metodología constructiva claramente tradicional. Huellas del pasado del edifico, como restos de argollas para atado del ganado, piedras calizas para apoyo de la estructura existe y otros elementos de madera, se han consolidado y recuperado como patrimonio histórico inmueble.
Se han conservado los muros de piedra, dejando los mampuestos a la vista. No se han utilizado otros materiales que no hayan sido propios de la arquitectura rural vasca. La composición de fachadas y plantas del edificio histórico, resuelta con sencillas formas geométricas, se ha mantenido.
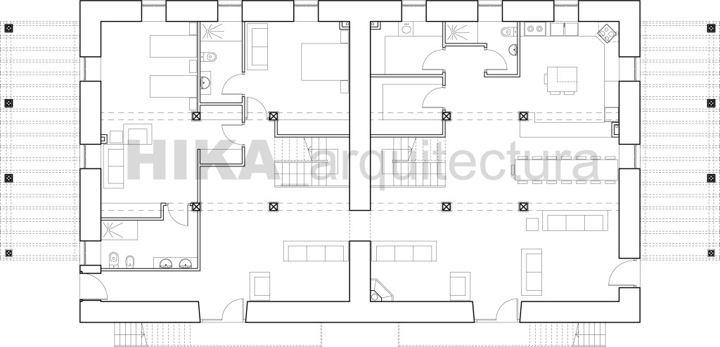
Después de vaciar el interior y consolidar el esqueleto estructural, se realizó una nueva distribución. Los huecos existentes se adecuaron para una mejora de confort interior, respetando sus anteriores ubicaciones. La planta baja se ha reconvertido en salón-comedor, cocina, despensa, lavandería, aseo, dos habitaciones y dos baños. En planta primera se han dispuesto cuatro habitaciones y cuatro baños. En planta bajocubierta se han habilitado dos espacios diáfanos.
En planta baja se accede a la zona de estar común y txoko mediante dos puertas principales por la fachada este, la principal, y dos accesos secundarios en las fachadas norte y sur bajo los porches laterales. En planta primera se conservan los dos accesos a los que se llega mediante las dos escaleras exteriores y balcones (patines), tras haber sido sustituidos los anteriores debido a su deterioro y para adecuar las nuevas al uso y normativa actuales. A pesar de la existencia de estos accesos exteriores independientes para las plantas baja y primera, se han ejecutado dos escaleras interiores de madera que comunican las tres plantas del edificio.
La intervención ha estado guiada por completo por el respeto debido al edificio originario, a su historia y naturaleza constructiva, preservando el marcado carácter de su imagen exterior y los materiales esenciales con que fue erigido (piedra, madera y teja curva). El caserío ha indicado qué hacer con él y los arquitectos, alejando de sí la tentación de incorporar «mejoras», han leído con claridad el sencillo mandato de los anónimos constructores que hace 200 años levantaron este caserío. Deferencia y admiración hacia su artesano trabajo.
Los promotores de esta recuperación son urbanitas que optaron por abandonar la ciudad. Su decisión fue tomada antes del covid-19, pero es de suponer que la pandemia estimulará comportamientos similares al suyo, lo cual -caso de suceder- permitiría la rehabilitación de algunas de las cientos de tradicionales viviendas que, como ésta, permanecen desatendidas por sus propietarios en territorio rural. Ojalá la situación pandémica permita, al menos, que esos caseríos vuelvan a la vida, como la habitabilidad, de buena manera, ha retornado a Etxebarrizelaieta.



Preciosa rehabilitación y muy buen artículo. Quizá quienes mejor supieron modernizar el tradicional baserri vasco fueron, allá por los años 60, los Arquitectos Nikola Madariaga y Lander Gallastegi, bajo el cobijo de su tío, Juan de Madariaga. Todavía hoy, medio siglo después de sus trabajos, sus viviendas unifamiliares son plenamente actuales, con innegables influencias de los trabajos de Frank Lloyd Wright o Richard Neutra. Sus viviendas en Bakio, Neguri y todo Uribe Kosta, son discretas y plenamente respetuosas con el entorno. Viviendas de una planta, primando la horizontalidad resaltada con grandes aleros, siempre a dos aguas, muros de piedra soberbios, chimenea central, carpintería exquisita y enormes cristaleras orientadas al Suroeste abiertas al jardín, metiéndolo así en la vivienda. Luego vendría Umbe, que también es muy interesante, pero quizá en una escala excesiva, en mi opinión. En sus trabajos es donde cobra sentido eso que debería hacer la Arquitectura: embellecer el entorno.
Me gustaMe gusta
Muy de acuerdo contigo, Ignacio, la tarea de Madariaga y Gallastegi marcó una época, el inicio de una época cuyas enseñanzas, podríamos decir, los tiempos posteriores con la multiplicación de viviendas unifamiliares por todo el territorio no supieron o no quisieron aprovechar. Una lástima. El caso de Etxebarrizelaieta es algo diferente, pues frente a los modelos revisitados del caserío, pero de nueva construcción, este es un caserío real e histórico que ha sido rehabilitado para una nueva situación funcional, doméstica sí, pero muy distinta de la que tuvieron sus habitantes anteriores, vinculados las tareas agropecuarias. Muchas gracias por tu interesante comentario.
Me gustaMe gusta